דופלקס למכירה
תיאור הנכס
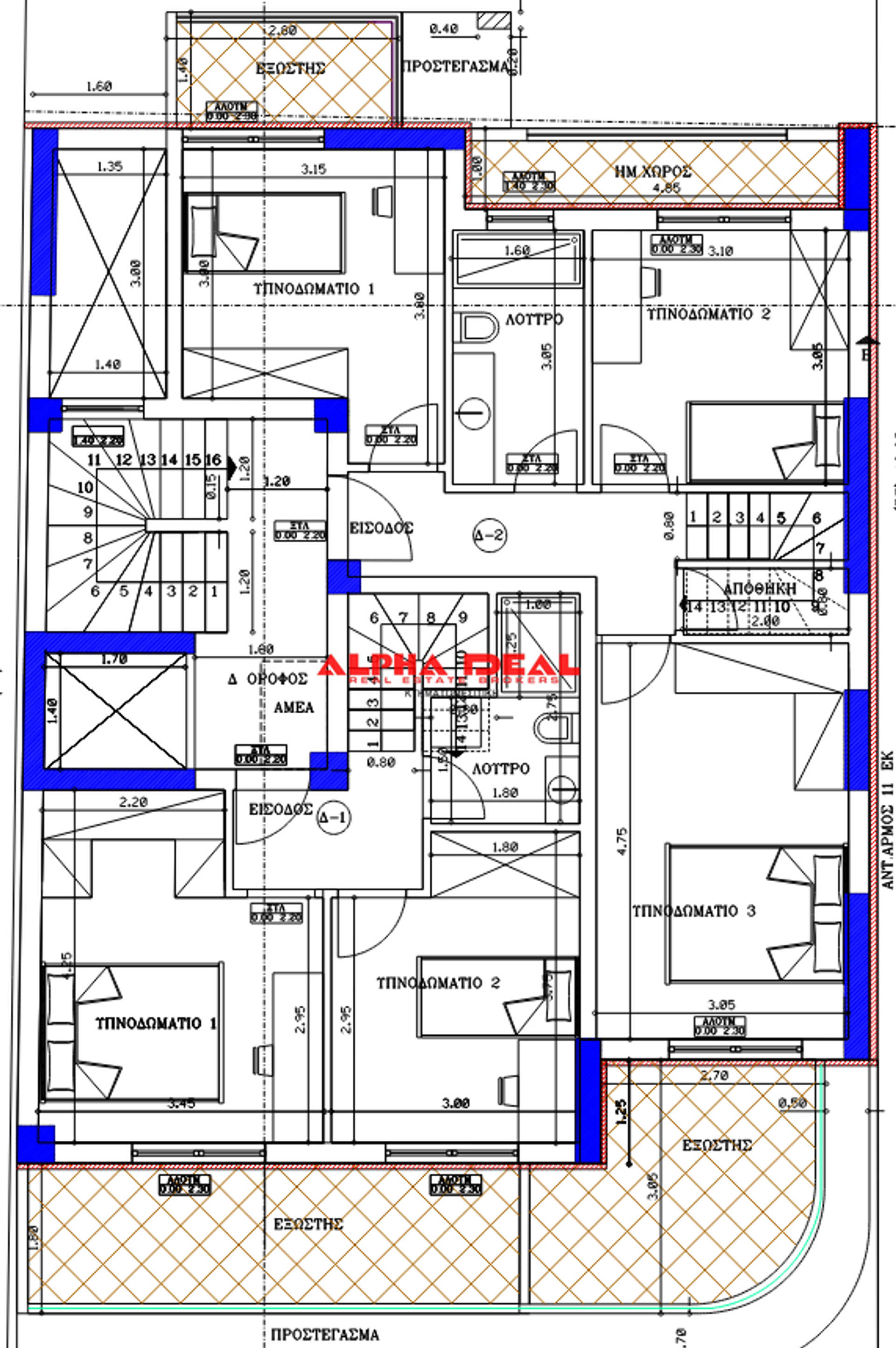
דירת דו קומות למכירה, אנו קורידלוס: דירת דו קומות חדשה בקומות 4 ו-5, 110 מ"ר. קומה 4 כוללת כניסה נפרדת, 2 חדרי שינה מרווחים ו-1 חדר שינה ראשי עם ארון walk-in וחדר רחצה פרטי עם מקלחת ומדרגות פנימיות. קומה 5 כוללת סלון פתוח עם פינת אוכל ומטבח, חדר רחצה גדול עם חדר כביסה, כניסה נפרדת וחלונות בגודל 4.5 מטר עם נוף להרים. עם סיום הבניה, הדירה תהיה עם מסגרות אלומיניום עם זכוכית משולשת, חימום עצמאי עם יחידות מיזוג אוויר לשימוש בקיץ ובחורף, דלת כניסה בטחונית וסימון אזעקה, תעודת אנרגיה A+, מעלית למרתף, דלת בטחונית, פאנלים סולאריים על הגג, התקנה מוקדמת של סיבים אופטיים ו-smart home. הדירה כוללת גם חדר אחסון בגודל 14 מ"ר וחניה תת קרקעית. בניה מפוארת עם כל התקנים האירופאים המודרניים ועם חומרי גלם מתקדמים בטכנולוגיה העדכנית ביותר. הדירה בהירה, שטופת שמש, אווירתה נעימה, מרווחת וממוקמת במיקום מצוין עם נוף להרים. היא ממוקמת ליד סופרמרקט ובתי ספר. הדירה כיום, ביולי 2025, בשלבי בטון. מועד מסירה: 03/2026.
תיאור זה תורגם על ידי בינה מלאכותית ועלול להכיל טעויות.
פרטי הנכס
מ"ר
110
חדרים
2
קומה
קומה 4
שנת בניה
2025
מחיר למטר
3,455 €
משופץ
לא
מרפסת
יש
חדרי רחצה
1
מספר חניות
1
מעלית
יש
דירוג אנרגטי
A+
קוד הנכס
1696835
חסרים לכם פרטים? צרו קשר
השלבים בדרך לנכס
מיקוד ומחקר הסביבה
מחקר והבנת השוק המקומי דרך נתונים ומומחים אזוריים
צפייה ופנייה לנכסים דומים
השוואת מחירים ומאפיינים תוך בחינה אקטיבית
בחירת עורך דין ומיופה כוח
בחירת עורך דין לייצוג וליווי הפעילות ביוון
פתיחת חשבון מס
תיאום עם עורך הדין פתיחת חשבון מס לצורך רכישת נכס
רכישת נכס
חתימה והעברת בעלות באמצעות עורך הדין הנבחר
צריכים ליווי מקצועי בתהליך?
צפו במשרדי עורכי הדין באזורמעוניינים בנכס?
נעביר את הבקשה למפרסם הנכס והוא יחזור אליכם בהקדם
מעוניינים בנכס?
נעביר את הבקשה למפרסם הנכס והוא יחזור אליכם בהקדם
קורידאלוס הוא פרבר במערב אתונה, יוון, הידוע כאחד האזורים המפותחים והמשגשגים ביותר של הבירה. השכונה מציעה שילוב מוצלח של חיים עירוניים עם אזורים ירוקים ומרחבים פתוחים. קורידאלוס מחוברת היטב לתחבורה הציבורית, כולל קווי מטרו ואוטובוסים, מה שמקל על הגישה למרכז אתונה ולשאר חלקי העיר. בשכונה ישנם מוסדות חינוך, מרכזי קניות, מסעדות ובתי קפה, מה שמעניק לתושבים מגוון רחב של שירותים ואפשרויות בילוי. בנוסף, בשכונה מתקיימים אירועי תרבות שונים, שמוסיפים לחיי הקהילה העשירים. קורידאלוס נחשבת למקום מגורים מבוקש בזכות איכות החיים הגבוהה, הנוחות והאווירה הידידותית. למידע נוסף על השכונה
מדדים עיקריים
מחיר למ״ר חדש
3,088 €
מחיר למ״ר יד שניה
1,905 €
שכירות חודשית
660 €
תשואה ברוטו
4.91%
סביבת הנכס
רוצים לדעת עוד פרטים על המיקום?
השאירו פרטים ונחזור אליכם עם מידע מפורט על האזור
תובנות על האזור
באזור זה זו נמצאת תחנת Korydallos, התחנה פעילה כחלק מהקו הקו הכחול
מחירון רשות מקומית קורידלוס
מחיר למטר
מחיר מלא
מ"ר
מחיר למ״ר יד שניה
שכירות חודשית
10-39
1,741 €
13 €
40-64
1,824 €
9 €
65-89
2,369 €
8 €
90-119
1,638 €
6 €
120+
1,698 €
6 €
המחירים אינם מייצגים דירות קרקע או מרתף, בדירות מהסוג הזה המחירים נמוכים לעיתים בעשרות אחוזים. המחירון אינו מהווה מקור רשמי ולא תחליף ליעוץ מקצועי
הזדמנויות דומות